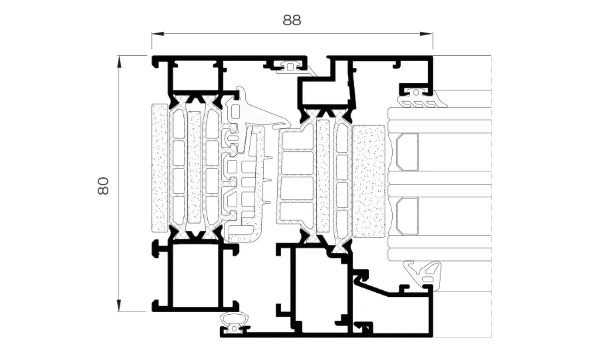
Sistema COR80 da CORTIZO, responde ás exigências climáticas severas, podendo indicada para integrar projetos de Cor 80 Passive House (PH – Passivehaus) em alumínio, melhora o rendimento térmico de um edifício, obtendo um maior conforto e diminuindo significativamente o consumo de energia, independentemente da zona climática onde se encontra e da arquitetura do edifício.
Esta solução em Alumínio tem certificação para a zona de Temperatura-WARM e oferece um excelente desempenho térmico graças a sua espuma incorporada no caixilho, sendo a escolha ideal edifícios de baixo consumo energético.
Características Cor80:
A alu-M é fabricante de sistemas CORTIZO.

Fonte: site CORTIZO
Uw ≥ 0,71 (W/m²K)
Rw até 46 dB
Classe 4
Classe E1950
Classe C5
Grau RC2 (WK2)