Janela de Correr COR VISION (Minimalista)

Sistema minimalista, de correr, de design moderno e elegante que possibilita a máxima entrada de luz com a mínima fração de alumínio.

Características:

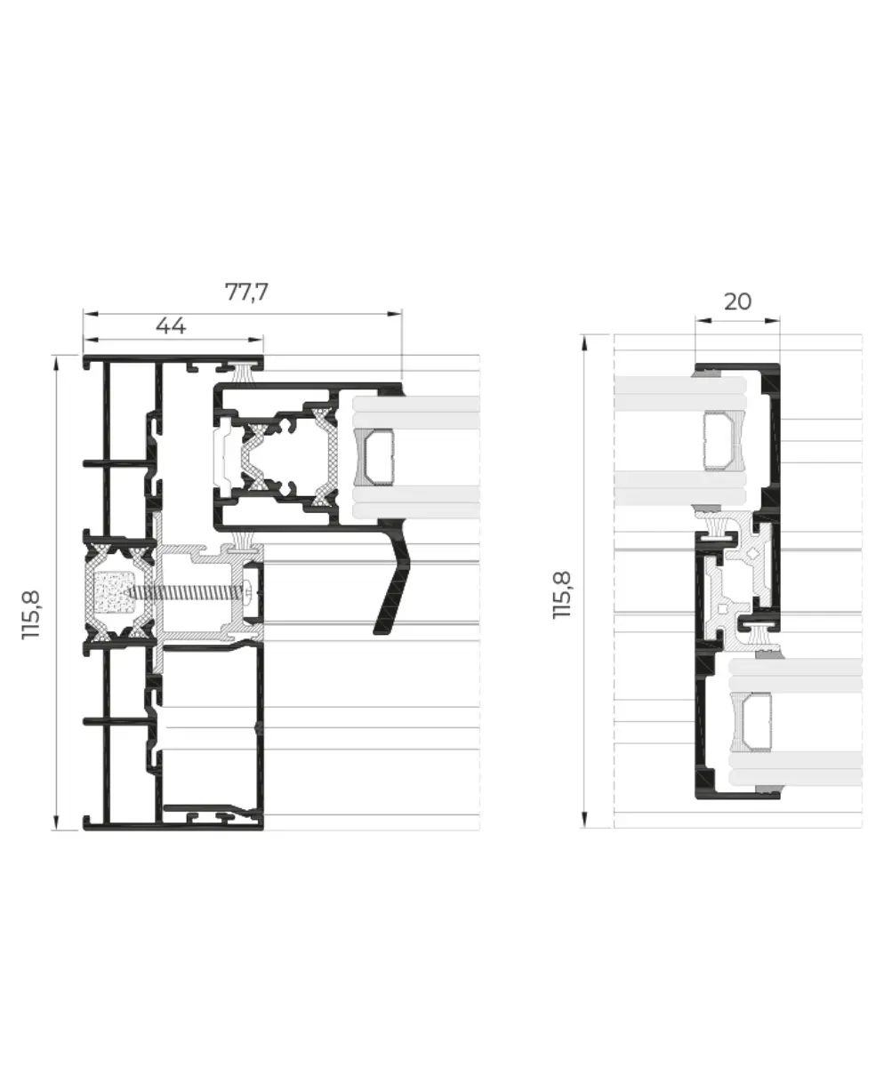
  • Secções vistas de ligação central de apenas 20 mm,
  • Vista lateral de 77 mm e vistas inferior/superior de 57 mm.
  • Possibilidade de embutir os aros fixos inferiores, superiores e laterais passando a apresentar apenas vistas de 35mm, 12mm e 12mm respetivamente.
  • Capacidade de envidraçamento até 30mm e possibilidade de encontros de folhas em esquina a 90º, sem necessidade de aro.
  • Permite incorporar sistemas de fecho multiponto por vareta com e sem chave.

Existe ainda a solução Cor Vision Plus, que possibilita vãos até 700kg motorizados, que permite a criação de vãos bastante grandes e fáceis de manobrar.

A alu-M é fabricante de sistemas CORTIZO.

Fonte: site CORTIZO

Características

Acabamentos

  • Bi-color;
  • Anodizado;
  • Lacado: RAL, salpicos e rugosos;
  • Lacagem: imitação de maneira;
  • Lacagem anti-bacteriana;

Possibilidade de abertura

  • Sistema de correr de 2, 3, 4 e 6 folhas
  • Possibilidade de 3 carris (3 folhas ou 2 folhas + 1 fixo)
  • Possibilidade de 1 carril (1 folha + 1 fixo)
  • Possibilidade de folhas a 90º
  • Possibilidade galandage de 1 e 2 folhas

Coeficiente térmico

  • - Uw desde 1.3 (W/m²K)

Secções / Espessura perfilaria

  • Aro fixo: 116mm/182mm (3 carris)
  • Folha: 37mm
  • Espessura perfilaria: 1.7mm

Dimensões e pesos máximos

  • Largura máxima: 2.500mm
  • Altura máxima: 3000mm
  • Peso máximo por folha: 320kg

Isolamento acústico

  • Rw = 41dB

Categorias em Banco de Ensaios

Transmitância Térmica

  • Uw ≥ 1,3 (W/m²K)

Isolamento Acústico

  • Rw até 41 dB

Permeabilidade ao Ar

  • Classe 4

Estanquidade à Água

  • Classe 7A

Resistência ao Vento

  • Classe C5

Ensaio de referência AEV 1,23 x 1,55m / 1 folha + 1 fixo