Janela de Correr Sistema 4900

Sistema 4900 da CORTIZO é um sistema de portas e janelas de correr, com elementos minimalistas com apenas 35mm de secção visível.

  • A sua capacidade de envidraçamento até 36mm, aumenta a prestação térmica e acústica.
  • Dimensões máx. da folha
    Largura (L) 2200 mm
    Altura (H) 3000 mm
  • Peso máx. da folha
    240 kg

A alu-M é fabricante de sistemas CORTIZO.

Fonte: site CORTIZO

Características

Acabamentos

  • Bi-color;
  • Lacagem e cores (RAL, salpicados e rugosos);
  • Lacagem imitação madeira;
  • Lacagem anti-bacteriana;
  • Anodizado.

Possibilidade de abertura

  • Abertura de correr de 2, 3, 4 e 6 folhas.
  • Abertura tricarril;
  • Galandage de 1, 2 e 4 folhas.

Coeficiente térmico

  • Uw de 1,2 (W/m²K) (dependendo da tipologia, dimensões e vidro)

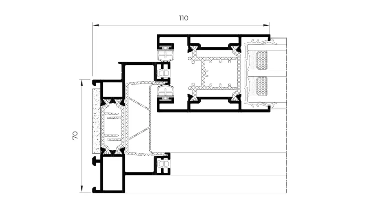
Secções / Espessura perfilaria

  • Aro: 70mm - Tricarril 126mm
  • Folha: 48mm
  • Espessura perfilaria: 1.6mm

Dimensões e pesos máximos

  • Largura máxima: 2.20m
  • Altura máxima: 2.60m
  • Peso máximo por folha: 240Kg

Categorias em Banco de Ensaios

Transmitância Térmica

  • Uw ≥ 1,2 (W/m²K)

Isolamento Acústico

  • Rw até 40 dB

Permeabilidade ao Ar

  • Classe 4

Estanquidade à Água

  • Classe 7A

Resistência ao Vento

  • Classe C5

Ensaio de referência AEV 1,80 x 2,20m / 2 folhas