Portas de Entrada Linear

Sistema que graças à construção multicâmara, as portas cumprem os mais elevados padrões de isolamento térmico, isolamento acústico e estabilidade. Ampla usabilidade e design moderno.

A alu-M é fabricante de sistemas Gealan.

Fonte: site Gealan

Características

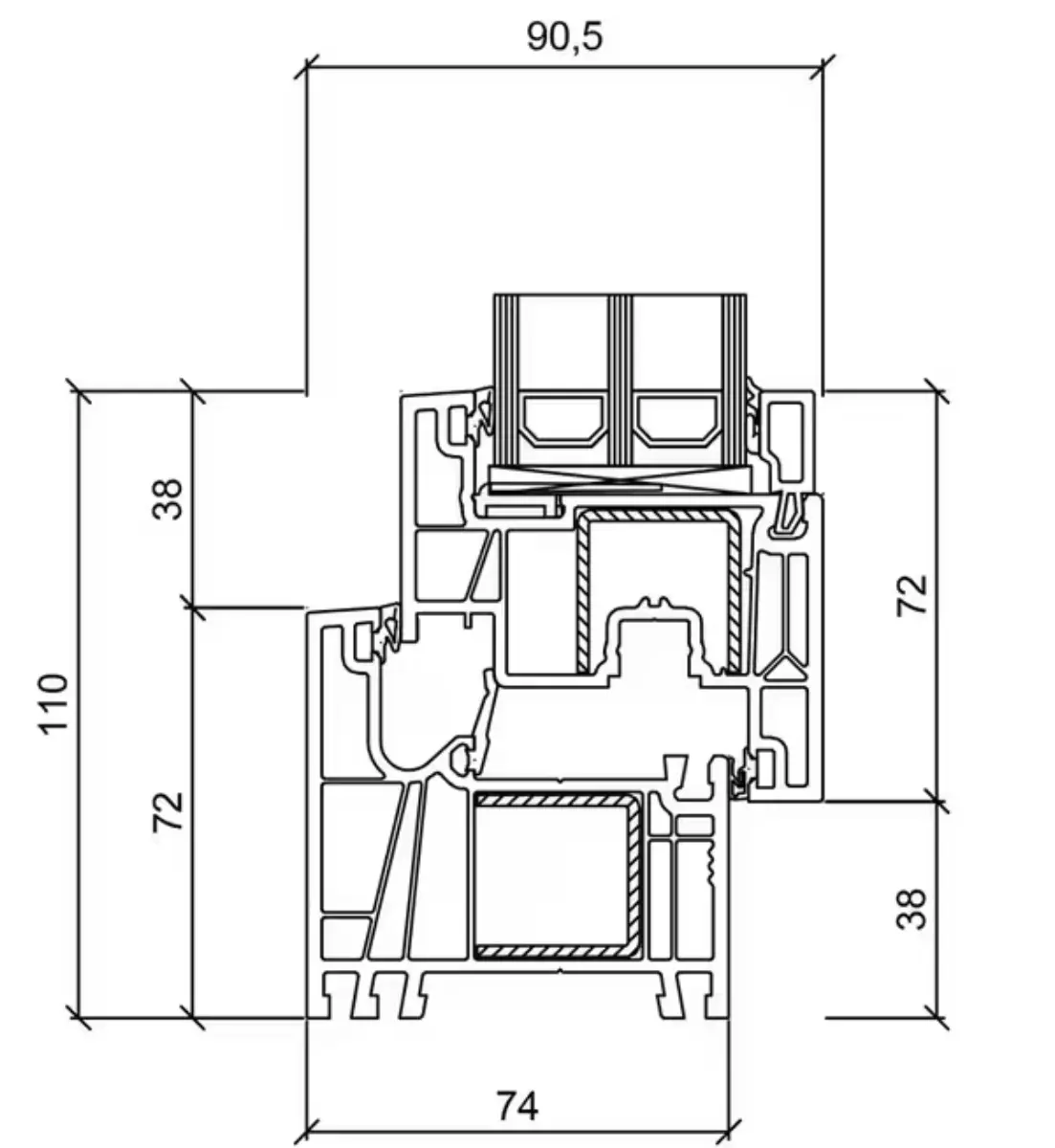
Sistema de Perfis

  • GEALAN-LINEAR®

Profundidade de Construção do Sistema

  • 74 milímetros

Execuções

  • Branco
  • GEALAN-acrilcolor®
  • Folhas decorativas
  • Revestimentos de alumínio
  • BALANCE

Altura de Capotamento

  • Estrutura: 26 mm
  • Asa: 18 mm

Espessura Máxima do Vidro

  • até 48 mm (junta), até 50 mm (STV®)

Valor Uf

  • até 1,0 W/(m²K)

Tipos

  • Soluções de janelas
  • Soluções de porta da frente
  • Soluções deslizantes

Categorias em Banco de Ensaios

Permeabilidade ao Ar

  • Classe 4

Estanquidade à Água

  • Classe 9A

Resistência ao Vento

  • Classe C5 / B5

Resistência ao Choque

  • Até à classe 3

Isolamento Acústico

  • 34 a 47 dB